Rif: P 7982023
ROMA
ROMA | - zona Pinciano - Villa Ada € 376.666- Attico
- Vendita
- 61 Mq
- 2 Vani
- 1 Camere
- 2 Bagni
- EPI: 175 kwh/m2 anno
- Classe energetica: G
- Descrizione
- Dettaglio immobile
- Consistenze
- Mappa
- Planimetrie
Valore Stima da CTU: Eu. 502.222,50
Offerta Minima: Eu. 376.666,87
Rata Mutuo 100%: Eu. 1.282
DESCRIZIONE IMMOBILE:
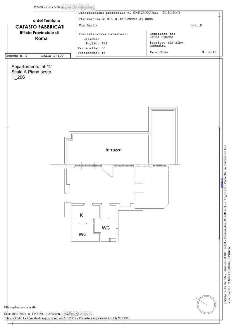
Quota pari al 100% del diritto di proprietà di Appartamento in Roma, Via Lazio n. 9, piano sesto della scala A, interno 12, composto da salone, una camera, cucinino e doppi servizi. All'appartamento è annessa una terrazza in parte verandata e coperta da pergola con telo retrattile. Il tutto per una superficie convenzionale complessiva di mq. 60,6 circa. Sulla terrazza (porzione non verandata) è posizionata una scala a chiocciola che conduce sulla copertura del fabbricato di proprietà condominiale. L'appartamento versa in buono stato di manutenzione. L'appartamento è ubicato nel pieno centro storico della città di Roma in prossimità della via Vittorio Veneto.
S.C. ASTE IMMOBILIARI, in collaborazione con lo STUDIO LEGALE RENDINA, offre consulenza ed assistenza legale in tutto il percorso di acquisto di immobili tramite ASTA GIUDIZIARIA.
PRIMA CONSULENZA COMPLETAMENTE GRATUITA
CONTATTI:
• Pomezia (RM), Largo Catone, 3
• Telefono 06 88792629/331 8098561
• Email: scasteimmobiliarisrl@gmail.com
• Sito Web: www.scasteimmobiliari.com
SEGUICI ANCHE SULLA NOSTRA PAGINA FACEBOOK ed INSTAGRAM: S.C. Aste immobiliari & Studio Legale Rendina
L' acquisto tramite ASTA GIUDIZIARIA è l'ideale per coloro che vogliono acquistare immobili ad un prezzo vantaggioso, risparmiando dal 30% al 50% rispetto al valore di mercato, affidandosi ad ESPERTI DEL SETTORE.
Riceverete inoltre assistenza e consulenza per:
• Ricerca personalizzata degli immobili secondo le vostre esigenze su scala nazionale, qualsiasi sia la vostra disponibilità finanziaria;
• Analisi e valutazione dell'immobile;
• Verifica e fattibilità per l'erogazione del MUTUO FINO AL 100% del prezzo di aggiudicazione;
• Prenotazione visita dell'immobile;
• Assistenza e consulenza per investimenti immobiliari.
CONTATTACI SENZA IMPEGNO
Offerta Minima: Eu. 376.666,87
Rata Mutuo 100%: Eu. 1.282
DESCRIZIONE IMMOBILE:
Quota pari al 100% del diritto di proprietà di Appartamento in Roma, Via Lazio n. 9, piano sesto della scala A, interno 12, composto da salone, una camera, cucinino e doppi servizi. All'appartamento è annessa una terrazza in parte verandata e coperta da pergola con telo retrattile. Il tutto per una superficie convenzionale complessiva di mq. 60,6 circa. Sulla terrazza (porzione non verandata) è posizionata una scala a chiocciola che conduce sulla copertura del fabbricato di proprietà condominiale. L'appartamento versa in buono stato di manutenzione. L'appartamento è ubicato nel pieno centro storico della città di Roma in prossimità della via Vittorio Veneto.
S.C. ASTE IMMOBILIARI, in collaborazione con lo STUDIO LEGALE RENDINA, offre consulenza ed assistenza legale in tutto il percorso di acquisto di immobili tramite ASTA GIUDIZIARIA.
PRIMA CONSULENZA COMPLETAMENTE GRATUITA
CONTATTI:
• Pomezia (RM), Largo Catone, 3
• Telefono 06 88792629/331 8098561
• Email: scasteimmobiliarisrl@gmail.com
• Sito Web: www.scasteimmobiliari.com
SEGUICI ANCHE SULLA NOSTRA PAGINA FACEBOOK ed INSTAGRAM: S.C. Aste immobiliari & Studio Legale Rendina
L' acquisto tramite ASTA GIUDIZIARIA è l'ideale per coloro che vogliono acquistare immobili ad un prezzo vantaggioso, risparmiando dal 30% al 50% rispetto al valore di mercato, affidandosi ad ESPERTI DEL SETTORE.
Riceverete inoltre assistenza e consulenza per:
• Ricerca personalizzata degli immobili secondo le vostre esigenze su scala nazionale, qualsiasi sia la vostra disponibilità finanziaria;
• Analisi e valutazione dell'immobile;
• Verifica e fattibilità per l'erogazione del MUTUO FINO AL 100% del prezzo di aggiudicazione;
• Prenotazione visita dell'immobile;
• Assistenza e consulenza per investimenti immobiliari.
CONTATTACI SENZA IMPEGNO
Contratto Vendita
Asta si
Rif P 7982023
Prezzo € 376.666
Provincia Roma
Comune Roma
Zona - Zona Pinciano - Villa Ada
Indirizzo Via Lazio 9">
Vani 2
Camere 1
Bagni 2
Classe energetica
G (DL 90/2013)
EPgl,nren 175 kwh/m2 anno
Piano 6 / 7
Riscaldamento autonomo
Condizioni abitabile
Spese condominiali € 1
Anno di costruzione 1966
Cucina abitabile
| Descrizione | Superficie | Sup. comm. |
|---|---|---|
| Principali | ||
| Immobile - 6° piano | 52 Mq | 52 Mqc |
| Terrazza - 6° piano | 27 Mq | 8 Mqc |
| Totale | 60 Mqc | |
Zoom della mappa
Apri con:
Apple Maps
Google Maps
Waze
Apri la mappa







