Rif: P 5172024
ROMA
ROMA | - zona Boccea € 143.250- Appartamento
- Vendita
- 87 Mq
- 3 Vani
- 2 Camere
- 1 Bagni
- Giardino 17 mq
- EPI: 175 kwh/m2 anno
- Classe energetica: G
- Descrizione
- Dettaglio immobile
- Consistenze
- Mappa
- Planimetrie
Valore Stima da CTU: Eu. 217.650,00
Offerta Minima: Eu. 143.250,00
Rata Mutuo 100%: Eu. 488
DESCRIZIONE IMMOBILE:
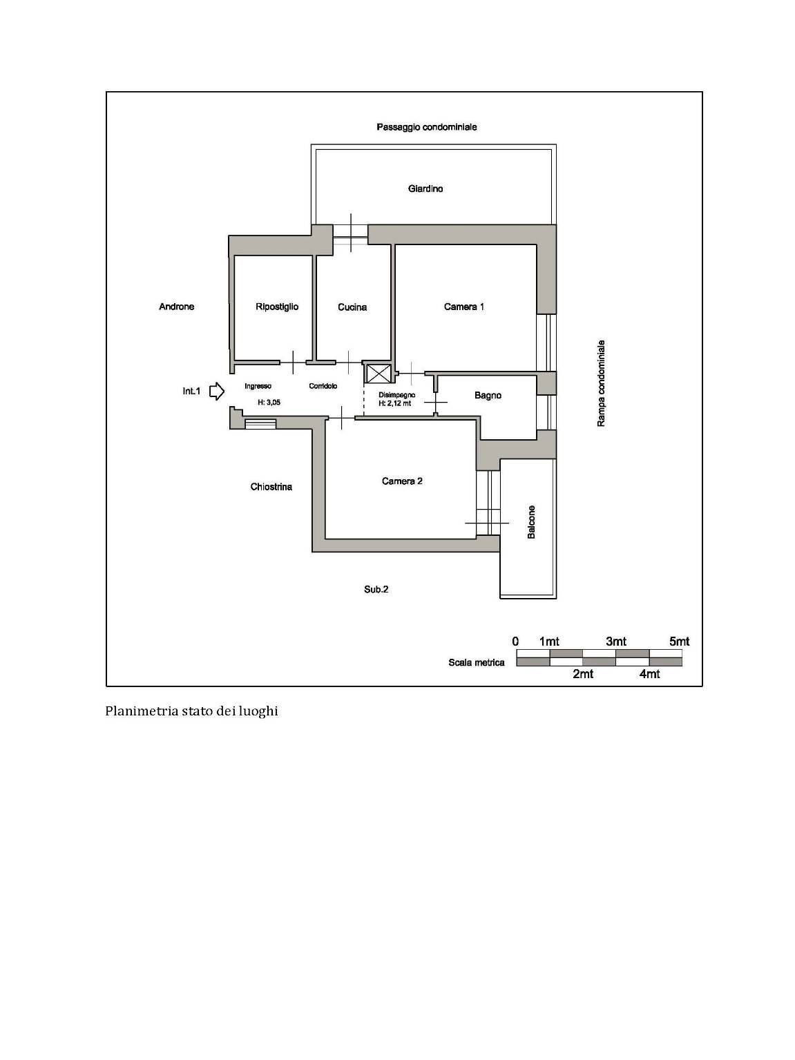
Quota pari a 100/100 del diritto di proprietà su appartamento sito in Roma, via Sisto IV n. 151, piano terra, int. 1, composto da ingresso, corridoio, ripostiglio, cucina, due camere, bagno, balcone e giardino.
S.C. ASTE IMMOBILIARI, in collaborazione con lo STUDIO LEGALE RENDINA, offre consulenza ed assistenza legale in tutto il percorso di acquisto di immobili tramite ASTA GIUDIZIARIA.
PRIMA CONSULENZA COMPLETAMENTE GRATUITA
CONTATTI:
• Pomezia (RM), Largo Catone, 3
• Telefono 06 88792629/331 8098561
• Email: scasteimmobiliarisrl@gmail.com
• Sito Web: www.scasteimmobiliari.com
SEGUICI ANCHE SULLA NOSTRA PAGINA FACEBOOK ed INSTAGRAM: S.C. Aste immobiliari & Studio Legale Rendina
L' acquisto tramite ASTA GIUDIZIARIA è l'ideale per coloro che vogliono acquistare immobili ad un prezzo vantaggioso, risparmiando dal 30% al 50% rispetto al valore di mercato, affidandosi ad ESPERTI DEL SETTORE.
Riceverete inoltre assistenza e consulenza per:
• Ricerca personalizzata degli immobili secondo le vostre esigenze su scala nazionale, qualsiasi sia la vostra disponibilità finanziaria;
• Analisi e valutazione dell'immobile;
• Verifica e fattibilità per l'erogazione del MUTUO FINO AL 100% del prezzo di aggiudicazione;
• Prenotazione visita dell'immobile;
• Assistenza e consulenza per investimenti immobiliari.
CONTATTACI SENZA IMPEGNO
Offerta Minima: Eu. 143.250,00
Rata Mutuo 100%: Eu. 488
DESCRIZIONE IMMOBILE:
Quota pari a 100/100 del diritto di proprietà su appartamento sito in Roma, via Sisto IV n. 151, piano terra, int. 1, composto da ingresso, corridoio, ripostiglio, cucina, due camere, bagno, balcone e giardino.
S.C. ASTE IMMOBILIARI, in collaborazione con lo STUDIO LEGALE RENDINA, offre consulenza ed assistenza legale in tutto il percorso di acquisto di immobili tramite ASTA GIUDIZIARIA.
PRIMA CONSULENZA COMPLETAMENTE GRATUITA
CONTATTI:
• Pomezia (RM), Largo Catone, 3
• Telefono 06 88792629/331 8098561
• Email: scasteimmobiliarisrl@gmail.com
• Sito Web: www.scasteimmobiliari.com
SEGUICI ANCHE SULLA NOSTRA PAGINA FACEBOOK ed INSTAGRAM: S.C. Aste immobiliari & Studio Legale Rendina
L' acquisto tramite ASTA GIUDIZIARIA è l'ideale per coloro che vogliono acquistare immobili ad un prezzo vantaggioso, risparmiando dal 30% al 50% rispetto al valore di mercato, affidandosi ad ESPERTI DEL SETTORE.
Riceverete inoltre assistenza e consulenza per:
• Ricerca personalizzata degli immobili secondo le vostre esigenze su scala nazionale, qualsiasi sia la vostra disponibilità finanziaria;
• Analisi e valutazione dell'immobile;
• Verifica e fattibilità per l'erogazione del MUTUO FINO AL 100% del prezzo di aggiudicazione;
• Prenotazione visita dell'immobile;
• Assistenza e consulenza per investimenti immobiliari.
CONTATTACI SENZA IMPEGNO
Contratto Vendita
Asta si
Rif P 5172024
Prezzo € 143.250
Provincia Roma
Comune Roma
Zona - Zona Boccea
Indirizzo Via Sisto iv 151">
Vani 3
Camere 2
Bagni 1
Classe energetica
G (DL 90/2013)
EPgl,nren 175 kwh/m2 anno
Riscaldamento autonomo
Condizioni abitabile
Spese condominiali € 1
Anno di costruzione 1964
Cucina abitabile
| Descrizione | Superficie | Sup. comm. |
|---|---|---|
| Principali | ||
| Immobile - piano terra | 82 Mq | 82 Mqc |
| Balcone - piano terra | 7 Mq | 2 Mqc |
| Giardino/Resede | 17 Mq | 3 Mqc |
| Totale | 87 Mqc | |
Zoom della mappa
Apri con:
Apple Maps
Google Maps
Waze
Apri la mappa







