Rif: P 3932024
MONTE PORZIO CATONE
ROMA € 226.500- Appartamento
- Vendita
- 173 Mq
- 4 Vani
- 3 Camere
- 2 Bagni
- EPI: 175 kwh/m2 anno
- Classe energetica: G
- Descrizione
- Dettaglio immobile
- Consistenze
- Mappa
- Planimetrie
Valore Stima da CTU: Eu. 302.000,00
Offerta Minima: Eu. 226.500,00
Rata Mutuo 100%: Eu. 771
DESCRIZIONE IMMOBILE:
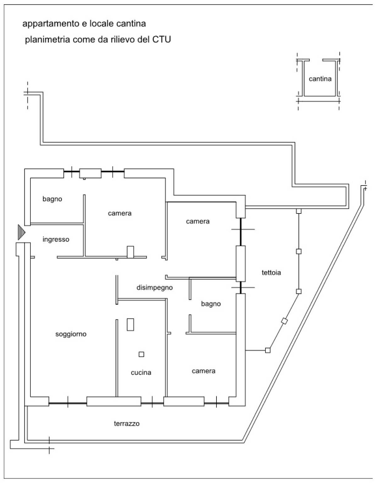
- Bene N° 1 - Appartamento ubicato a Monte Porzio Catone (RM) - Via XXV Luglio n.11 , edificio B, interno B14, piano 1. Il bene è posto all'interno di un complesso composto da più edifici collegati tra loro. L'appartamento si trova al piano primo del corpo B, ed è composto da ingresso, soggiorno, cucina, disimpegno, tre camere, due bagni di cui uno con accesso interno ad una delle camere, un terrazzo/ballatoio che corre lungo due dei lati dall'appartamento. Su uno dei lati del tarrazzo è stata realizzata una tettoia. All'appartamento è annessa una cantina posta al piano terra dell'edificio.
- Bene N° 2 - Posto auto ubicato a Monte Porzio Catone (RM) - Via XXV Luglio n.11 , edificio B, interno 44, piano t. Trattasi di posto auto scoperto sito nella corte comune del fabbricato.
S.C. ASTE IMMOBILIARI, in collaborazione con lo STUDIO LEGALE RENDINA, offre consulenza ed assistenza legale in tutto il percorso di acquisto di immobili tramite ASTA GIUDIZIARIA.
PRIMA CONSULENZA COMPLETAMENTE GRATUITA
CONTATTI:
• Pomezia (RM), Largo Catone, 3
• Telefono 06 88792629/331 8098561
• Email: scasteimmobiliarisrl@gmail.com
• Sito Web: www.scasteimmobiliari.com
SEGUICI ANCHE SULLA NOSTRA PAGINA FACEBOOK ed INSTAGRAM: S.C. Aste immobiliari & Studio Legale Rendina
L' acquisto tramite ASTA GIUDIZIARIA è l'ideale per coloro che vogliono acquistare immobili ad un prezzo vantaggioso, risparmiando dal 30% al 50% rispetto al valore di mercato, affidandosi ad ESPERTI DEL SETTORE.
Riceverete inoltre assistenza e consulenza per:
• Ricerca personalizzata degli immobili secondo le vostre esigenze su scala nazionale, qualsiasi sia la vostra disponibilità finanziaria;
• Analisi e valutazione dell'immobile;
• Verifica e fattibilità per l'erogazione del MUTUO FINO AL 100% del prezzo di aggiudicazione;
• Prenotazione visita dell'immobile;
• Assistenza e consulenza per investimenti immobiliari.
CONTATTACI SENZA IMPEGNO
Offerta Minima: Eu. 226.500,00
Rata Mutuo 100%: Eu. 771
DESCRIZIONE IMMOBILE:
- Bene N° 1 - Appartamento ubicato a Monte Porzio Catone (RM) - Via XXV Luglio n.11 , edificio B, interno B14, piano 1. Il bene è posto all'interno di un complesso composto da più edifici collegati tra loro. L'appartamento si trova al piano primo del corpo B, ed è composto da ingresso, soggiorno, cucina, disimpegno, tre camere, due bagni di cui uno con accesso interno ad una delle camere, un terrazzo/ballatoio che corre lungo due dei lati dall'appartamento. Su uno dei lati del tarrazzo è stata realizzata una tettoia. All'appartamento è annessa una cantina posta al piano terra dell'edificio.
- Bene N° 2 - Posto auto ubicato a Monte Porzio Catone (RM) - Via XXV Luglio n.11 , edificio B, interno 44, piano t. Trattasi di posto auto scoperto sito nella corte comune del fabbricato.
S.C. ASTE IMMOBILIARI, in collaborazione con lo STUDIO LEGALE RENDINA, offre consulenza ed assistenza legale in tutto il percorso di acquisto di immobili tramite ASTA GIUDIZIARIA.
PRIMA CONSULENZA COMPLETAMENTE GRATUITA
CONTATTI:
• Pomezia (RM), Largo Catone, 3
• Telefono 06 88792629/331 8098561
• Email: scasteimmobiliarisrl@gmail.com
• Sito Web: www.scasteimmobiliari.com
SEGUICI ANCHE SULLA NOSTRA PAGINA FACEBOOK ed INSTAGRAM: S.C. Aste immobiliari & Studio Legale Rendina
L' acquisto tramite ASTA GIUDIZIARIA è l'ideale per coloro che vogliono acquistare immobili ad un prezzo vantaggioso, risparmiando dal 30% al 50% rispetto al valore di mercato, affidandosi ad ESPERTI DEL SETTORE.
Riceverete inoltre assistenza e consulenza per:
• Ricerca personalizzata degli immobili secondo le vostre esigenze su scala nazionale, qualsiasi sia la vostra disponibilità finanziaria;
• Analisi e valutazione dell'immobile;
• Verifica e fattibilità per l'erogazione del MUTUO FINO AL 100% del prezzo di aggiudicazione;
• Prenotazione visita dell'immobile;
• Assistenza e consulenza per investimenti immobiliari.
CONTATTACI SENZA IMPEGNO
Contratto Vendita
Asta si
Rif P 3932024
Prezzo € 226.500
Provincia Roma
Comune Monte Porzio Catone
Indirizzo Via 25 Luglio 11">
Vani 4
Camere 3
Bagni 2
Classe energetica
G (DL 90/2013)
EPgl,nren 175 kwh/m2 anno
Piano 1 / 3
Riscaldamento autonomo
Condizioni abitabile
Spese condominiali € 1
Anno di costruzione 1996
Ascensore si
Cucina abitabile
| Descrizione | Superficie | Sup. comm. |
|---|---|---|
| Principali | ||
| Immobile - 1° piano | 150 Mq | 150 Mqc |
| Terrazza - 1° piano | 60 Mq | 18 Mqc |
| Cantina - piano terra | 4 Mq | 1 Mqc |
| Posto auto | 13 Mq | 4 Mqc |
| Totale | 173 Mqc | |
Zoom della mappa
Apri con:
Apple Maps
Google Maps
Waze
Apri la mappa







