Rif: P 76872025 L1
ROMA
ROMA | - zona Dragona € 96.000- Villa plurifamiliare
- Vendita
- 181 Mq
- 4 Vani
- 3 Camere
- 2 Bagni
- Giardino 117 mq
- EPI: 175 kwh/m2 anno
- Classe energetica: G
- Descrizione
- Dettaglio immobile
- Consistenze
- Mappa
- Planimetrie
Valore Stima da CTU: Eu. 180.550,00
Offerta Minima: Eu. 96.000,00
DESCRIZIONE IMMOBILE:
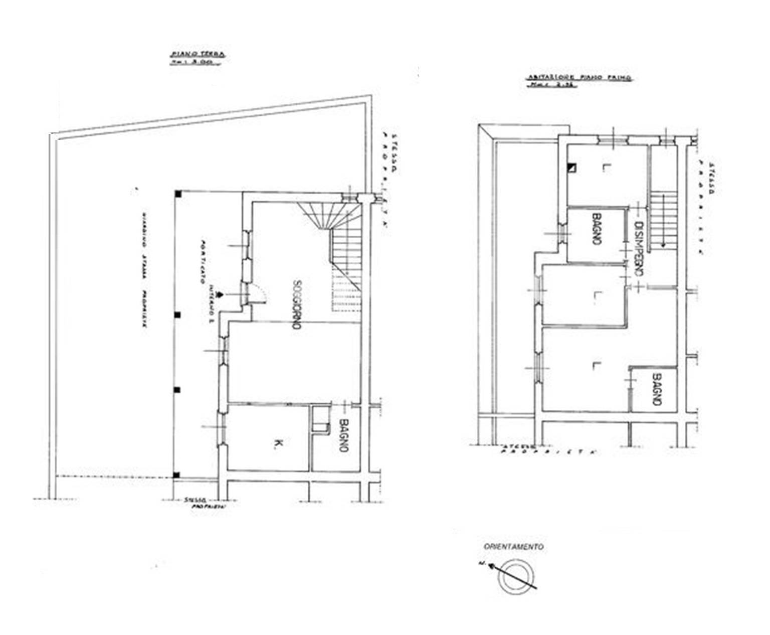
Quota pari a 1/1 diritto di proprietà sull'immobile destinato ad abitazione villetta sito in Roma alla via Erich Boehringer 32-34, interno 2, piano T-1: porzione di villetta quadrifamiliare composta da ampio giardino esterno con porticato, internamente al piano terra da soggiorno, cucina e bagno e al piano primo da 3 camere da letto e un bagno, oltre a balcone, per complessivi mq. 154,00 circa lordi, oltre mq. 176,20 circa lordi per aree scoperte.
S.C. ASTE IMMOBILIARI, in collaborazione con lo STUDIO LEGALE RENDINA, offre consulenza ed assistenza legale in tutto il percorso di acquisto di immobili tramite ASTA GIUDIZIARIA.
PRIMA CONSULENZA COMPLETAMENTE GRATUITA
CONTATTI:
• Pomezia (RM), Largo Catone, 3
• Telefono 06 88792629/331 8098561
• Email: scasteimmobiliarisrl@gmail.com
• Sito Web: www.scasteimmobiliari.com
SEGUICI ANCHE SULLA NOSTRA PAGINA FACEBOOK ed INSTAGRAM: S.C. Aste immobiliari & Studio Legale Rendina
L' acquisto tramite ASTA GIUDIZIARIA è l'ideale per coloro che vogliono acquistare immobili ad un prezzo vantaggioso, risparmiando dal 30% al 50% rispetto al valore di mercato, affidandosi ad ESPERTI DEL SETTORE.
Riceverete inoltre assistenza e consulenza per:
• Ricerca personalizzata degli immobili secondo le vostre esigenze su scala nazionale, qualsiasi sia la vostra disponibilità finanziaria;
• Analisi e valutazione dell'immobile;
• Verifica e fattibilità per l'erogazione del MUTUO FINO AL 100% del prezzo di aggiudicazione;
• Prenotazione visita dell'immobile;
• Assistenza e consulenza per investimenti immobiliari.
CONTATTACI SENZA IMPEGNO
Offerta Minima: Eu. 96.000,00
DESCRIZIONE IMMOBILE:
Quota pari a 1/1 diritto di proprietà sull'immobile destinato ad abitazione villetta sito in Roma alla via Erich Boehringer 32-34, interno 2, piano T-1: porzione di villetta quadrifamiliare composta da ampio giardino esterno con porticato, internamente al piano terra da soggiorno, cucina e bagno e al piano primo da 3 camere da letto e un bagno, oltre a balcone, per complessivi mq. 154,00 circa lordi, oltre mq. 176,20 circa lordi per aree scoperte.
S.C. ASTE IMMOBILIARI, in collaborazione con lo STUDIO LEGALE RENDINA, offre consulenza ed assistenza legale in tutto il percorso di acquisto di immobili tramite ASTA GIUDIZIARIA.
PRIMA CONSULENZA COMPLETAMENTE GRATUITA
CONTATTI:
• Pomezia (RM), Largo Catone, 3
• Telefono 06 88792629/331 8098561
• Email: scasteimmobiliarisrl@gmail.com
• Sito Web: www.scasteimmobiliari.com
SEGUICI ANCHE SULLA NOSTRA PAGINA FACEBOOK ed INSTAGRAM: S.C. Aste immobiliari & Studio Legale Rendina
L' acquisto tramite ASTA GIUDIZIARIA è l'ideale per coloro che vogliono acquistare immobili ad un prezzo vantaggioso, risparmiando dal 30% al 50% rispetto al valore di mercato, affidandosi ad ESPERTI DEL SETTORE.
Riceverete inoltre assistenza e consulenza per:
• Ricerca personalizzata degli immobili secondo le vostre esigenze su scala nazionale, qualsiasi sia la vostra disponibilità finanziaria;
• Analisi e valutazione dell'immobile;
• Verifica e fattibilità per l'erogazione del MUTUO FINO AL 100% del prezzo di aggiudicazione;
• Prenotazione visita dell'immobile;
• Assistenza e consulenza per investimenti immobiliari.
CONTATTACI SENZA IMPEGNO
Contratto Vendita
Asta si
Rif P 76872025 L1
Prezzo € 96.000
Provincia Roma
Comune Roma
Zona - Zona Dragona
Indirizzo Via Erich Boehringer 32">
Vani 4
Camere 3
Bagni 2
Classe energetica
G (DL 90/2013)
EPgl,nren 175 kwh/m2 anno
Riscaldamento autonomo
Condizioni abitabile
Spese condominiali € 1
Anno di costruzione 1995
Cucina abitabile
| Descrizione | Superficie | Sup. comm. |
|---|---|---|
| Principali | ||
| Immobile - piano terra | 78 Mq | 78 Mqc |
| Immobile - 1° piano | 76 Mq | 76 Mqc |
| Giardino/Resede | 117 Mq | 12 Mqc |
| Terrazza - piano terra | 31 Mq | 8 Mqc |
| Balcone - 1° piano | 28 Mq | 7 Mqc |
| Totale | 181 Mqc | |
Zoom della mappa
Apri con:
Apple Maps
Google Maps
Waze
Apri la mappa







