Rif: P 2772024
POMEZIA
ROMA € 94.500- Appartamento
- Vendita
- 102 Mq
- 3 Vani
- 2 Camere
- 1 Bagni
- EPI: 175 kwh/m2 anno
- Classe energetica: G
- Descrizione
- Dettaglio immobile
- Consistenze
- Mappa
- Planimetrie
Valore Stima da CTU: Eu. 132.776,00
Offerta Minima: Eu. 94.500,00
Rata Mutuo 100%: Eu. 322
DESCRIZIONE IMMOBILE:
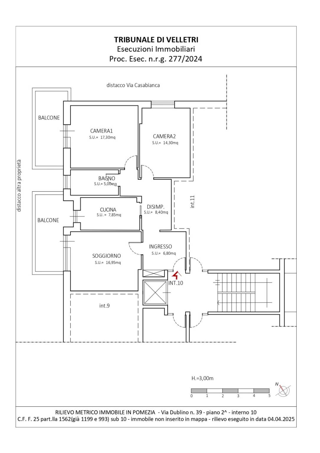
Bene N° 1 - Appartamento ubicato a Pomezia (RM) – Località Torvaianica - Via Dublino n. 39, palazzina 2, interno 10, piano 2. Trattasi di appartamento in palazzina a tre piani fuori terra più piano attico e piano interrato, facente parte di un complesso edilizio costituito da due palazzine, ubicato in una zona residenziale, ai margini della zona costruita, distante appena 300 m dalla spiaggia e circa 10 km dal centro di Pomezia. L'appartamento posto al secondo piano della palazzina 2, è servito da ascensore ed è composto da ingresso, soggiorno, cucina abitabile, due camere, un bagno e due balconi.
Bene N° 2 – Locale ad uso cantina/garage ubicato a Pomezia (RM) - Località Torvaianica - Via Casablanca n. 16, interno 8, piano S-1.
S.C. ASTE IMMOBILIARI, in collaborazione con lo STUDIO LEGALE RENDINA, offre consulenza ed assistenza legale in tutto il percorso di acquisto di immobili tramite ASTA GIUDIZIARIA.
PRIMA CONSULENZA COMPLETAMENTE GRATUITA
CONTATTI:
• Pomezia (RM), Largo Catone, 3
• Telefono 06 88792629/331 8098561
• Email: scasteimmobiliarisrl@gmail.com
• Sito Web: www.scasteimmobiliari.com
SEGUICI ANCHE SULLA NOSTRA PAGINA FACEBOOK ed INSTAGRAM: S.C. Aste immobiliari & Studio Legale Rendina
L' acquisto tramite ASTA GIUDIZIARIA è l'ideale per coloro che vogliono acquistare immobili ad un prezzo vantaggioso, risparmiando dal 30% al 50% rispetto al valore di mercato, affidandosi ad ESPERTI DEL SETTORE.
Riceverete inoltre assistenza e consulenza per:
• Ricerca personalizzata degli immobili secondo le vostre esigenze su scala nazionale, qualsiasi sia la vostra disponibilità finanziaria;
• Analisi e valutazione dell'immobile;
• Verifica e fattibilità per l'erogazione del MUTUO FINO AL 100% del prezzo di aggiudicazione;
• Prenotazione visita dell'immobile;
• Assistenza e consulenza per investimenti immobiliari.
CONTATTACI SENZA IMPEGNO
Offerta Minima: Eu. 94.500,00
Rata Mutuo 100%: Eu. 322
DESCRIZIONE IMMOBILE:
Bene N° 1 - Appartamento ubicato a Pomezia (RM) – Località Torvaianica - Via Dublino n. 39, palazzina 2, interno 10, piano 2. Trattasi di appartamento in palazzina a tre piani fuori terra più piano attico e piano interrato, facente parte di un complesso edilizio costituito da due palazzine, ubicato in una zona residenziale, ai margini della zona costruita, distante appena 300 m dalla spiaggia e circa 10 km dal centro di Pomezia. L'appartamento posto al secondo piano della palazzina 2, è servito da ascensore ed è composto da ingresso, soggiorno, cucina abitabile, due camere, un bagno e due balconi.
Bene N° 2 – Locale ad uso cantina/garage ubicato a Pomezia (RM) - Località Torvaianica - Via Casablanca n. 16, interno 8, piano S-1.
S.C. ASTE IMMOBILIARI, in collaborazione con lo STUDIO LEGALE RENDINA, offre consulenza ed assistenza legale in tutto il percorso di acquisto di immobili tramite ASTA GIUDIZIARIA.
PRIMA CONSULENZA COMPLETAMENTE GRATUITA
CONTATTI:
• Pomezia (RM), Largo Catone, 3
• Telefono 06 88792629/331 8098561
• Email: scasteimmobiliarisrl@gmail.com
• Sito Web: www.scasteimmobiliari.com
SEGUICI ANCHE SULLA NOSTRA PAGINA FACEBOOK ed INSTAGRAM: S.C. Aste immobiliari & Studio Legale Rendina
L' acquisto tramite ASTA GIUDIZIARIA è l'ideale per coloro che vogliono acquistare immobili ad un prezzo vantaggioso, risparmiando dal 30% al 50% rispetto al valore di mercato, affidandosi ad ESPERTI DEL SETTORE.
Riceverete inoltre assistenza e consulenza per:
• Ricerca personalizzata degli immobili secondo le vostre esigenze su scala nazionale, qualsiasi sia la vostra disponibilità finanziaria;
• Analisi e valutazione dell'immobile;
• Verifica e fattibilità per l'erogazione del MUTUO FINO AL 100% del prezzo di aggiudicazione;
• Prenotazione visita dell'immobile;
• Assistenza e consulenza per investimenti immobiliari.
CONTATTACI SENZA IMPEGNO
Contratto Vendita
Asta si
Rif P 2772024
Prezzo € 94.500
Provincia Roma
Comune Pomezia
Indirizzo Via Dublino 39">
Vani 3
Camere 2
Bagni 1
Classe energetica
G (DL 90/2013)
EPgl,nren 175 kwh/m2 anno
Piano 2 / 5
Riscaldamento autonomo
Condizioni abitabile
Spese condominiali € 1
Anno di costruzione 1967
Ascensore si
Cucina abitabile
| Descrizione | Superficie | Sup. comm. |
|---|---|---|
| Principali | ||
| Immobile - 2° piano | 91 Mq | 91 Mqc |
| Balcone - 2° piano | 11 Mq | 3 Mqc |
| Balcone - 2° piano | 12 Mq | 4 Mqc |
| Cantina - piano interrato | 17 Mq | 4 Mqc |
| Totale | 102 Mqc | |
Zoom della mappa
Apri con:
Apple Maps
Google Maps
Waze
Apri la mappa







