Rif: P 5882019
POMEZIA
ROMA € 80.000- Ufficio
- Vendita
- 207 Mq
- 6 Vani
- 2 Bagni
- EPI: 175 kwh/m2 anno
- Classe energetica: G
- Descrizione
- Dettaglio immobile
- Consistenze
- Mappa
- Planimetrie
Valore Stima da CTU: Eu. 310.230,00
Offerta Minima: Eu. 80.000,00
Rata Mutuo 100%: Eu. 272
DESCRIZIONE IMMOBILE:
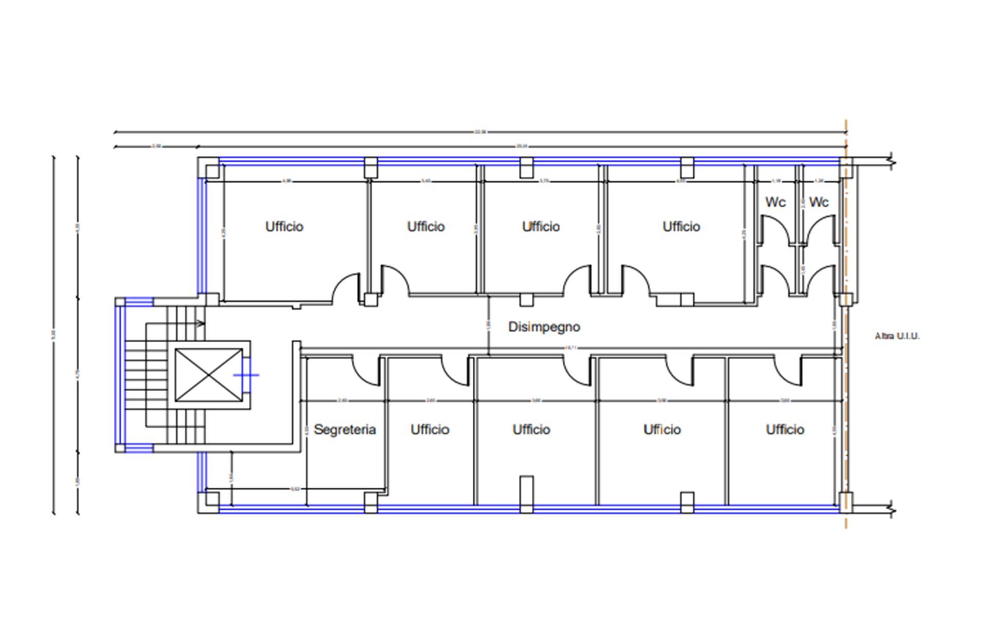
Locale ad uso ufficio privato, facente parte di una palazzina di immobili destinati ad uffici, magazzini e negozi, posto al piano primo della scala A, avente accesso da Via Campobello n. 28, di consistenza catastale di 11 (undici) vani, compreso accessori. Il compendio risulta ubicato in zona periferica del comune di Pomezia a prevalente destinazione commerciale/industriale, distante pochi chilometri di infrastrutture quali edifici di Culto, edifici Amministrativi, Scuole, Istituti Bancari, etc. La zona risulta urbanizzata, servita dalle infrastrutture primarie e secondarie, e da viabilità urbana.
S.C. ASTE IMMOBILIARI, in collaborazione con lo STUDIO LEGALE RENDINA, offre consulenza ed assistenza legale in tutto il percorso di acquisto di immobili tramite ASTA GIUDIZIARIA.
PRIMA CONSULENZA COMPLETAMENTE GRATUITA
CONTATTI:
• Pomezia (RM), Largo Catone, 3
• Telefono 06 88792629/331 8098561
• Email: scasteimmobiliarisrl@gmail.com
• Sito Web: www.scasteimmobiliari.com
SEGUICI ANCHE SULLA NOSTRA PAGINA FACEBOOK ed INSTAGRAM: S.C. Aste immobiliari & Studio Legale Rendina
L' acquisto tramite ASTA GIUDIZIARIA è l'ideale per coloro che vogliono acquistare immobili ad un prezzo vantaggioso, risparmiando dal 30% al 50% rispetto al valore di mercato, affidandosi ad ESPERTI DEL SETTORE.
Riceverete inoltre assistenza e consulenza per:
• Ricerca personalizzata degli immobili secondo le vostre esigenze su scala nazionale, qualsiasi sia la vostra disponibilità finanziaria;
• Analisi e valutazione dell'immobile;
• Verifica e fattibilità per l'erogazione del MUTUO FINO AL 100% del prezzo di aggiudicazione;
• Prenotazione visita dell'immobile;
• Assistenza e consulenza per investimenti immobiliari.
CONTATTACI SENZA IMPEGNO
Offerta Minima: Eu. 80.000,00
Rata Mutuo 100%: Eu. 272
DESCRIZIONE IMMOBILE:
Locale ad uso ufficio privato, facente parte di una palazzina di immobili destinati ad uffici, magazzini e negozi, posto al piano primo della scala A, avente accesso da Via Campobello n. 28, di consistenza catastale di 11 (undici) vani, compreso accessori. Il compendio risulta ubicato in zona periferica del comune di Pomezia a prevalente destinazione commerciale/industriale, distante pochi chilometri di infrastrutture quali edifici di Culto, edifici Amministrativi, Scuole, Istituti Bancari, etc. La zona risulta urbanizzata, servita dalle infrastrutture primarie e secondarie, e da viabilità urbana.
S.C. ASTE IMMOBILIARI, in collaborazione con lo STUDIO LEGALE RENDINA, offre consulenza ed assistenza legale in tutto il percorso di acquisto di immobili tramite ASTA GIUDIZIARIA.
PRIMA CONSULENZA COMPLETAMENTE GRATUITA
CONTATTI:
• Pomezia (RM), Largo Catone, 3
• Telefono 06 88792629/331 8098561
• Email: scasteimmobiliarisrl@gmail.com
• Sito Web: www.scasteimmobiliari.com
SEGUICI ANCHE SULLA NOSTRA PAGINA FACEBOOK ed INSTAGRAM: S.C. Aste immobiliari & Studio Legale Rendina
L' acquisto tramite ASTA GIUDIZIARIA è l'ideale per coloro che vogliono acquistare immobili ad un prezzo vantaggioso, risparmiando dal 30% al 50% rispetto al valore di mercato, affidandosi ad ESPERTI DEL SETTORE.
Riceverete inoltre assistenza e consulenza per:
• Ricerca personalizzata degli immobili secondo le vostre esigenze su scala nazionale, qualsiasi sia la vostra disponibilità finanziaria;
• Analisi e valutazione dell'immobile;
• Verifica e fattibilità per l'erogazione del MUTUO FINO AL 100% del prezzo di aggiudicazione;
• Prenotazione visita dell'immobile;
• Assistenza e consulenza per investimenti immobiliari.
CONTATTACI SENZA IMPEGNO
Contratto Vendita
Asta si
Rif P 5882019
Prezzo € 80.000
Provincia Roma
Comune Pomezia
Indirizzo Via Campobello 28">
Vani 6
Bagni 2
Classe energetica
G (DL 90/2013)
EPgl,nren 175 kwh/m2 anno
Piano 1 / 5
Riscaldamento autonomo
Condizioni abitabile
Spese condominiali € 1
Anno di costruzione 1989
Arredato si
Ascensore si
Descrizione | Superficie | Sup. comm. |
---|---|---|
Principali | ||
Ufficio - 1° piano | 207 Mq | 207 Mqc |
Totale | 207 Mqc |
Zoom della mappa
Apri con:
Apple Maps
Google Maps
Waze
Apri la mappa